Thiết kế showroom váy cưới – TKS 029
- Mã: TKS 029
- Thương hiệu: Casara
- Tình trạng: có sẵn
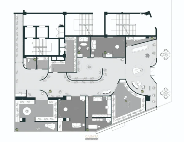
Dự án thiết kế showroom váy cưới được định hình theo phong cách hiện đại tinh giản, kết hợp hài hòa giữa đường cong kiến trúc mềm mại và tông màu trắng chủ đạo, tạo nên một không gian đầy chất thơ và thanh lịch. Từng chi tiết nội thất – từ giá treo váy ánh đồng, gạch lát vân đá, đến ánh sáng âm trần dịu nhẹ – đều được tính toán kỹ lưỡng nhằm làm nổi bật vẻ đẹp của các mẫu váy cưới. Không gian được thiết kế mở, thông thoáng, giúp khách hàng cảm nhận sự sang trọng và đẳng cấp ngay từ ánh nhìn đầu tiên. Đây không chỉ là nơi trưng bày sản phẩm mà còn là trải nghiệm nghệ thuật trong hành trình tìm kiếm vẻ đẹp hoàn hảo cho ngày trọng đại.
Khu vực sảnh đón và quầy lễ tân
Sảnh đón được thiết kế tối giản, tinh tế với điểm nhấn là quầy lễ tân bo cong ốp đá marble trắng vân mây mềm mại, tạo hiệu ứng thị giác trang nhã. Logo thương hiệu ZHENPIN nổi bật trên nền tường trắng, kết hợp ánh sáng hắt tường nhẹ nhàng tôn lên sự sang trọng và chuyên nghiệp. Toàn bộ không gian mở ra một ấn tượng đầu tiên về sự chỉn chu và đẳng cấp.

Khu vực lounge tiếp khách
Không gian tiếp khách sử dụng ghế sofa cong kết hợp cùng ghế đơn da lộn và bàn trà nghệ thuật, tạo nên một khu vực nghỉ ngơi tinh tế và ấm áp. Thiết kế vách ngăn với họa tiết nếp gấp mềm mại như dải lụa, biểu tượng của sự duyên dáng và nữ tính. Ánh sáng trần giếng trời được xử lý khéo léo, mang đến cảm giác thư giãn, riêng tư và tinh tế trong từng khoảnh khắc trò chuyện cùng khách hàng.

Không gian trưng bày váy cưới
Hệ thống trưng bày váy cưới được thiết kế khéo léo dọc theo các hành lang và khu trung tâm, sử dụng khung treo ánh kim vàng đồng mềm mại, tạo điểm nhấn sang trọng nhưng vẫn giữ sự thoáng đãng. Các mannequin được bố trí hợp lý giúp tối ưu hóa trải nghiệm thị giác. Sàn lát đá marble bóng kết hợp ánh sáng trắng dịu, phản chiếu nhẹ nhàng tạo hiệu ứng lung linh, tôn vinh vẻ đẹp của từng thiết kế váy cưới.


Khu vực hành lang trưng bày
Hành lang thiết kế theo dạng lối đi cong mềm, kết nối các khu vực một cách mạch lạc. Các khung treo váy dạng vòm ánh kim lặp lại có chủ ý, kết hợp đèn led âm trần và ánh sáng hắt chân tường tạo nên chiều sâu và chuyển động ánh sáng uyển chuyển. Thiết kế hành lang không chỉ đảm bảo tính thẩm mỹ mà còn giúp dẫn dắt hành trình trải nghiệm của khách hàng một cách tinh tế.

Phòng thử đồ
Phòng thử đồ được thiết kế đậm chất boutique với gương lớn khung vòm ánh đồng, bục xoay trung tâm, thảm trải sàn sang trọng và sofa nghỉ nhẹ nhàng phía sau. Vách tường sử dụng lam phào cổ điển pha hiện đại, kết hợp ánh sáng trung tính giúp phản chiếu trọn vẹn vóc dáng và chất liệu váy. Đây là không gian lý tưởng để khách hàng cảm nhận được sự chăm chút trong từng chi tiết.

Phòng vệ sinh
Không gian phòng vệ sinh vẫn giữ phong cách xuyên suốt: ốp đá marble vân mây, lavabo bo tròn mềm mại, gương tròn tích hợp đèn LED và tủ âm sắc đồng hiện đại. Mọi chi tiết đều được tính toán kỹ lưỡng để đảm bảo sự tiện nghi và nhất quán trong trải nghiệm không gian của khách hàng.

Kết luận
Dự án thiết kế showroom váy cưới là sự kết hợp hài hòa giữa thẩm mỹ tinh tế và công năng tối ưu. Mỗi không gian đều được trau chuốt để tôn vinh vẻ đẹp của sản phẩm. Casara tự hào kiến tạo nên trải nghiệm đẳng cấp cho thương hiệu với những showroom mang đậm tính chất của thương hiệu.
Warning: Undefined variable $post in /home/casara.vn/public_html/wp-content/themes/casara/includes/shortcodes.php on line 27
Warning: Undefined variable $post in /home/casara.vn/public_html/wp-content/themes/casara/includes/shortcodes.php on line 31
Warning: Attempt to read property "ID" on null in /home/casara.vn/public_html/wp-content/themes/casara/includes/shortcodes.php on line 31











